Detské ihrisko - zostava so nerezovou šmykľavkou - Piccolo
Kód: 11230900
Bezpečnosť Vašich detí je našou prioritou
Naše výrobky sú vyrábané v súlade s bezpečnostnými predpismi podľa EN 71 a EN 1176.

Odborná montáž
Náš tím skúsených technikov šetrí váš čas a urobia odbornú montáž za vás.
Súvisiaci tovar
Podrobný popis
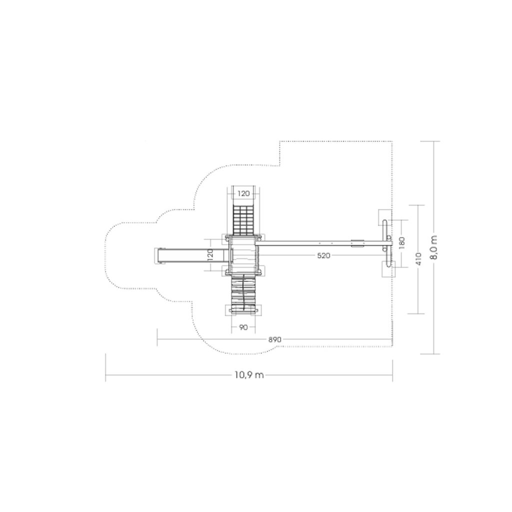
Kvalitní kombinovaná akátová sestava s nerezovou skluzavkou a houpačkou - Piccolo je určena do zahrad mateřských a základních škol, na veřejná dětská hřiště, ale doporučujeme ji umístit i ke komerčním objektům - restauracím, hotelům, penzionům, a pod., kde se jistě stane lákadlem pro děti. Krásná masivní herní sestava s nerezovou skluzavkou z akátu - Piccolo je vyrobená z kvalitního a odolného akátového dřeva. Herní sestava je složena z těchto částí - věž bez střechy, která je zabetonována pevně do terénu. Vstupy na sestavu jsou možné po šikmé lezecí stěně s průžezy a dřevěnými chyty, šplhací síti a po šikmé plošině s výstupky. K sestavě je připojena kvalitní nerezová skluzavka. K této věži je připojena houpačka pro dvě děti - jeden houpačkový sedák pro nejmenší a jeden pro větší děti v ceně. Tato herní sestava je pro děti velmi atraktivní a zajímavá, může nahradit více herních prvků. Dřevo je ošetřené vysoce odolnou zdravotně nezávadnou lazurou. Upozornění - nerezovou skluzavku nikdy neumísťujte na přímé slunce, v letních měsících mohou na skluzavce vznikat vysoké teploty a hrající se děti by se mohli popálit! Skluzavku nejlépe natočte směrem na sever nebo sestavu umístěte do trvalého stínu. Výška pádu tohoto dětského hřiště je 1,5 metru a proto je nezbytně nutné vytvořit v dopadové oblasti celé herní sestavy tlumící povrch pro případ pádu (např. 30cm silná vrstva písku, kačírku nebo drcené kůry). Náš tip - nejvýhodnější materiál pro vytvoření dopadové plochy tlumící pád z výšky až 3 m jsou pryžové zatravňovací desky Grass a Saf. Jejich instalace je jednoduchá pokládka na terén bez nutnosti zemních prací. Výhody – nevýhody jednotlivých podkladů: Dopadové zatravňovací dlaždice •+zcela bezpečný, rovný , ohraničený povrch •+plní tlumící funkci při dopadu •+estetický vzhled •+nenáročné na údržbu Kačírek ( doporučujeme frakci 4-8) •+plní drenážní funkci •+plní tlumící funkci při dopadu dětí •-děti roznáší kamínky do okolního trávníku Písek •-Zadržuje vodu •-Roznáší se po zahradě •-Dochází k mechanické odírání dřevěných částí herní sestavy •-Láká domácí zvířata ( především kočičky) Mulčovací kůra •-Zadržuje vodu •-Vytváří vlhkost u země a tvoří se plísně •-Sesychá – nutnost doplňovat. Dětské hřiště je určeno pro děti od 3 do 15 let, na děti od 3 do 6 let je nutný dohled dospělé osoby. Sestava se skluzavkou na dětská hřiště Piccolo je certifikovaná dle EN 1176 pro veřejná dětská hřiště.Dodatočné parametre
| Kategória: | Verejné detské ihriská |
|---|---|
| Hmotnosť: | 10000 kg |
| Bezpečnost: | certifikace dle EN 1176 |
| Celková výška: | 220 cm |
| Cena dopravy: | individuální |
| Cena montáže: | realizujeme po celé SR |
| Kotvení: | betonováním stojek do terénu |
| Ošetření dřeva: | nátěr lazurou |
| Podklad: | povrch tlumící pád - 29m2 |
| Skluzavka: | nerezová v ceně výrobku |
| Údržba: | pravidelná dle EN 1176 |
| Cena nátěru: | zdarma |
| Materiál: | akátové (dubové) dřevo |
| Počet uživatelů: | max. 8 |
| Rozměr: | 890 x 500 cm |
| Velikost bezpečnostních zón: | 800 x 1 090 cm |
| Vhodné pro děti: | od 3 do 15 let |
| Výška pádu: | do 150 cm |
Diskusia
Buďte prvý, kto napíše príspevok k tejto položke.

